ABOUT US
WORKS
COMPANY
BLOG
2021.4
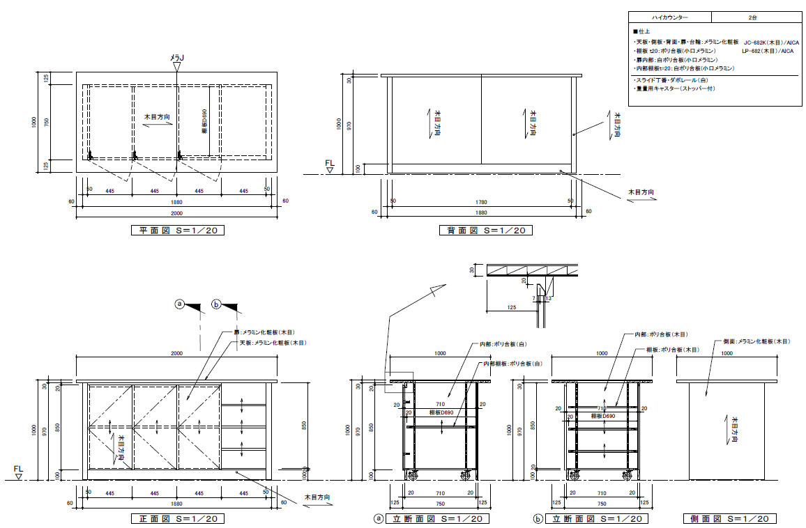
可動式ハイカウンター
写真中央にあるハイカウンター:W2000xD1000xH1000
製作図でもわかるようにビックカウンターですが、
収納+キャスター付で自由にレイアウト変更が可能となっております。