
以前オフィスを施工させていただいたお客様から家具の追加依頼をいただきました。
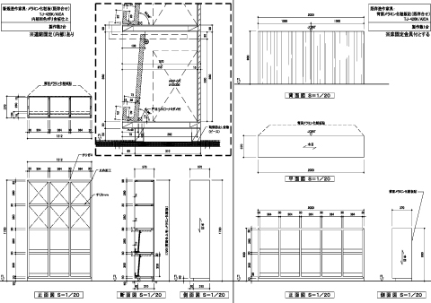
PLANと製作図面も打ち合わせをもとにしっかり作成しました。

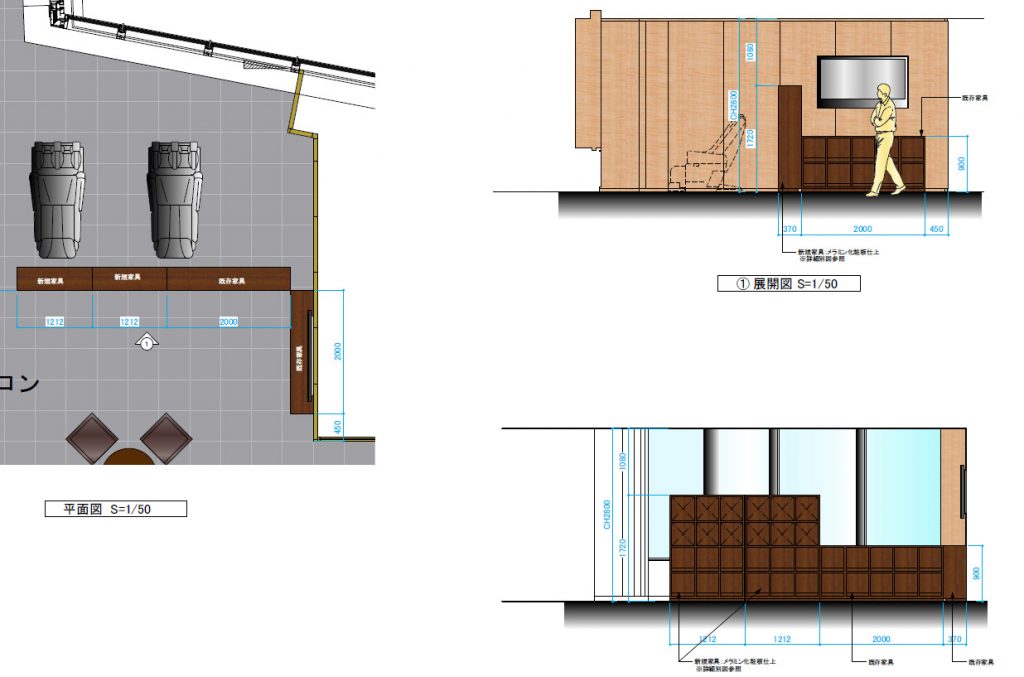
前回製作したローキャビネットは、壁付だったので裏面の仕上がっていませんでした。
今回位置を移動することで背面にメラミン材を貼りました。

ローキャビネットでも転倒防止用にOAフロアーにL金物を取り付けます。

上段は、通常の本棚
下段は、フラップレールを付けて本が飾れる棚になりました。
雑誌がインテリアの一部のように馴染んで素敵な空間になることでしょう♪
本体:木下地+メラミン化粧板/TJ-420K/AICA
金物:フラップレール